「玄関通路!?」ヨーロッパの小路をイメージした、明るく機能的なフルリフォーム
「狭い玄関を“自由で美しい通路”に。生活が変わる、発想力リフォーム」



🔍 リフォームのきっかけ・背景
海老名市のマンションで、ご家族が安心して暮らせる“明るく開放的な住まい”を目指したフルリフォーム。
以前からガスコンロ交換や扉の修理などで長年お付き合いのあるお客様です。
今回は、全面的なリフォームをご依頼いただきました。
💡 ご要望とプランの工夫
🌟 お客様のご希望
-
玄関が狭く暗い → 明るく広くしたい
-
リビングを開放的にしたい
-
お風呂で足を伸ばしたい
- 収納と導線を整理したい
📝 お打ち合わせ・現場調査
ご希望は「玄関を明るく広く」「家族が集まれる開放的なLDK」「足を伸ばせる浴槽」と、明確で具体的なものでした。
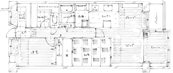
現地調査で実測を行い、現状の寸法と構造を確認しながら2パターンの図面を作成しました。
リフォーム前の導線や採光の問題点を洗い出し、プランに反映していきました。
★【画像:既存図面】

✏️ プランニング・ご提案
初期案では、玄関横の壁を一部壊して洋室を小さくし、シューズクローゼットを設ける案をご提案しました。
★【画像:初期プラン図(玄関横クローク案)】

しかし奥様からは「今は何も作らず、暮らしながら使い道を考えたい」とのご希望があり、
“ヨーロッパの小路”のような自由な通路空間を作る新たな提案にシフト。
※お客様が「玄関通路」と命名しました
将来的に棚などが取り付けられるように、玄関通路の壁はすべて下地に合板を使用しています。
★【画像:最終プラン図(玄関通路案)】



📏 Before写真と現状の課題
★【Before:リビング】

★【Before:キッチン/カウンターの圧迫感あり】


★【Before:玄関廊下/暗く閉塞感あり】

★【Before:ユニットバス/1218で足が伸ばせない】

★【Before:和室/仮住まい用に一時荷物置場】

🏢 ショールーム同行(TOTO/パナソニック)
設備機器・建材はTOTO横浜港北ショールーム/パナソニックにて選定。
実物に触れて質感・操作感を確認しながら、色や機能を丁寧に検討していただきました。
🛠️ 工事内容と施工の流れ
🧰 各種工事と写真配置
★【写真:解体/木工/左官】
👉 共用部・室内ともに丁寧な養生を徹底。職人の整理整頓も◎




フローリング貼り(パナソニックL-45)
★【写真:施工中+床養生】
👉 遮音規定に従い、L-45メープル柄を採用


キッチン設置(TOTOザ・クラッソ)
★【写真:工事中】
👉 10mm単位の調整でフィラーなしのピッタリ設置

内装工事(クロス・床仕上げ)
★【写真:施工中】
👉 クローゼット天井のクロスはお孫さん用絵本にも活用!

家具設置(パナソニックキュピオス)
★【写真:家具設置中】

エコカラット・内窓工事
★【写真:リビング壁+内窓施工前/施工後】





ハウスクリーニング・除湿器運用
★【写真:掃除・除湿器】



🌟 完成写真と見どころ
📸 玄関通路(ヨーロッパの小路風)
👉 「何も作らない空間」という奥様のこだわり。
将来棚板を付けられるよう下地を合板で施工
★【After写真:玄関通路】



📸 リビング+サンルーム
★【After写真:リビング/サンルーム/ダイニング】



📸 キッチン+背面収納
★【After写真:キッチン+収納】


📸 ユニットバス(1317へサイズアップ)
👉 ご主人のご希望「足を伸ばせる浴槽」に対応
★【After写真:UB】
📸 洗面化粧台+洗面所クロス
★【After写真:洗面台/壁紙】


📸 和室(へりなし畳み・市松敷き)
★【After写真:和室】

📸 トイレ(オーダー建具)
★【After写真:トイレ】

📸 洋室・ウォークインクローゼット
★【After写真:洋室/WIC】




📚 余った壁紙の素敵な使い方
お孫さんのために、余った壁紙を使って動植物の折り紙とコラボした絵本を手作りされたとのこと。
とても素敵な発想で、こちらまで嬉しくなりました。
★【写真:手作り絵本】





👷 担当者からひとこと
打ち合わせ中も工事中も、ご夫婦のセンスと柔軟な発想に驚かされました。
合理性だけでなく“余白”のある空間づくりというテーマは、私にとっても大きな学びです。
またいつでもお声がけくださいね!
📸お引き渡し後の写真です




📋 施工情報
-
地域:神奈川県海老名市
-
工期:約1ヶ月 (フルリフォームの為、その期間中は賃貸マンションにお引っ越し)
-
施工内容:LDK・水回り・玄関・和室・内窓・収納・建具・内装ほか全面リフォーム
-
採用メーカー:TOTO、パナソニック、サンゲツ、リリカラ、ルノン、東リ、YKK、他
-
特記事項:全体調和設計、家具・収納・照明設計含む
おわりに
喜んでいただけて嬉しいです。
お打ち合わせから工事中、完成まで楽しいリフォームでした。
いつもお声を掛けていただいた事に感謝いたします。
では、また(^_^)


